2 Beds 2 Bath

2031 Devine Road, Orleans - Cumberland and Area, ON K0A 3H0

Orleans - Cumberland and Area K0A 3H0 Ontario

MLS: X12869296

$995,000

Added 21 hours ago | For Sale

Listed by: RE/MAX DELTA REALTY

About Property

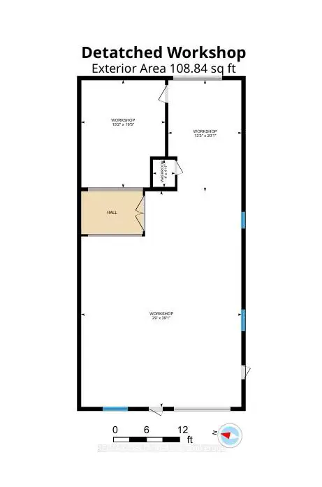
Welcome to 2031 Devine Road in the charming V, where country living meets convenience just minutes from the city. Situated on a spacious 0.66-acre lot, this well-designed raised bungalow offers the perfect blend of comfort, functionality, and great for a home-based business and hobbies. The home features 2+1 bedrooms, 2 bathrooms, and a bright open living space with a kitchen, eating area, and a bright living room designed for easy everyday living. The finished lower level provides additional living space with a large family room, bedroom, and bathroom w/built-in laundry. A gas fireplace insert upstairs and a freestanding unit downstairs add warmth and character throughout the home. There is also a heated mudroom at the back of the single attached garage for added convenience. One of the standout features of this property is the impressive 30' x 60' heated workshop, ideal for entrepreneurs, tradespeople, hobbyists, or anyone needing extra workspace or storage. And with over 5 covered and 15 open parking spaces, there is more than enough room to park the entire family's fleet of vehicles plus any additional recreational vehicles, equipment, trailers, and toys. Enjoy landscaped outdoor living and tons of space for gardening while the fenced-in backyard keeps pets and little ones safe and uninvited ones out. Nothing but pure enjoyment thanks to the large zero maintenance aluminum deck and gazebo for plenty of room to relax, entertain, and enjoy peaceful rural surroundings. Located in the welcoming Vars community, you'll appreciate the quiet village lifestyle while being only minutes to Highway 417 and a short drive to Ottawa and Orléans for easy commuting while still enjoying the space and tranquility of country living. Broader range and quantity of amenities are just 8 minutes away in Embrun. This versatile property offers exceptional flexibility, space, functionality, and location all in one, rarely found so close to the city. 24hrs irrevocable on all offers.

Features

  • House Style:Detached
  • Bathrooms:2
  • Land Size: 132.78 X 218.99
  • Water:Municipal
  • Garage Spaces: /Attached
  • Driveway:
  • Heating Fuel:Gas
  • Cross Street:Rockdale Road
  • Basement:Full,Finished , Full,Finished
  • Possession Date:
  • Annual Property taxes: $4610
  • Bedrooms:2 +1
  • Total Parking Spaces:15
  • Parking Places:15
  • Heating Type:Forced Air
  • Pool Type:None
  • Exterior:
  • Direction Facing:North
  • Front Footage:
  • Listing ID:X12869296

Level Type Features Dimensions
Ground Kitchen Combined w/Dining 11 ft x 8 ft
Dining Room Combined w/Kitchen 10 ft x 10 ft
Living Room 15 ft x 19 ft
Primary Bedroom 12 ft x 12 ft
Bedroom 2 10 ft x 12 ft
Bathroom 3 Pc Bath 12 ft x 5 ft
Basement Family Room 25 ft x 14 ft
Bedroom 3 25 ft x 14 ft
Bathroom Combined w/Laundry 6 ft x 10 ft
Utility Room 6 ft x 3 ft

No property rooms available.

About Agent
Tajinder Sarao
REALTOR®
(647) 206-7222 [email protected]
Get in Touch

By proceeding, you consent to receive calls and texts at the number you provided.

Powered by AgentEdge Inc

Terms & Conditions Privacy Policy

© Copyright All Rights Reserved.